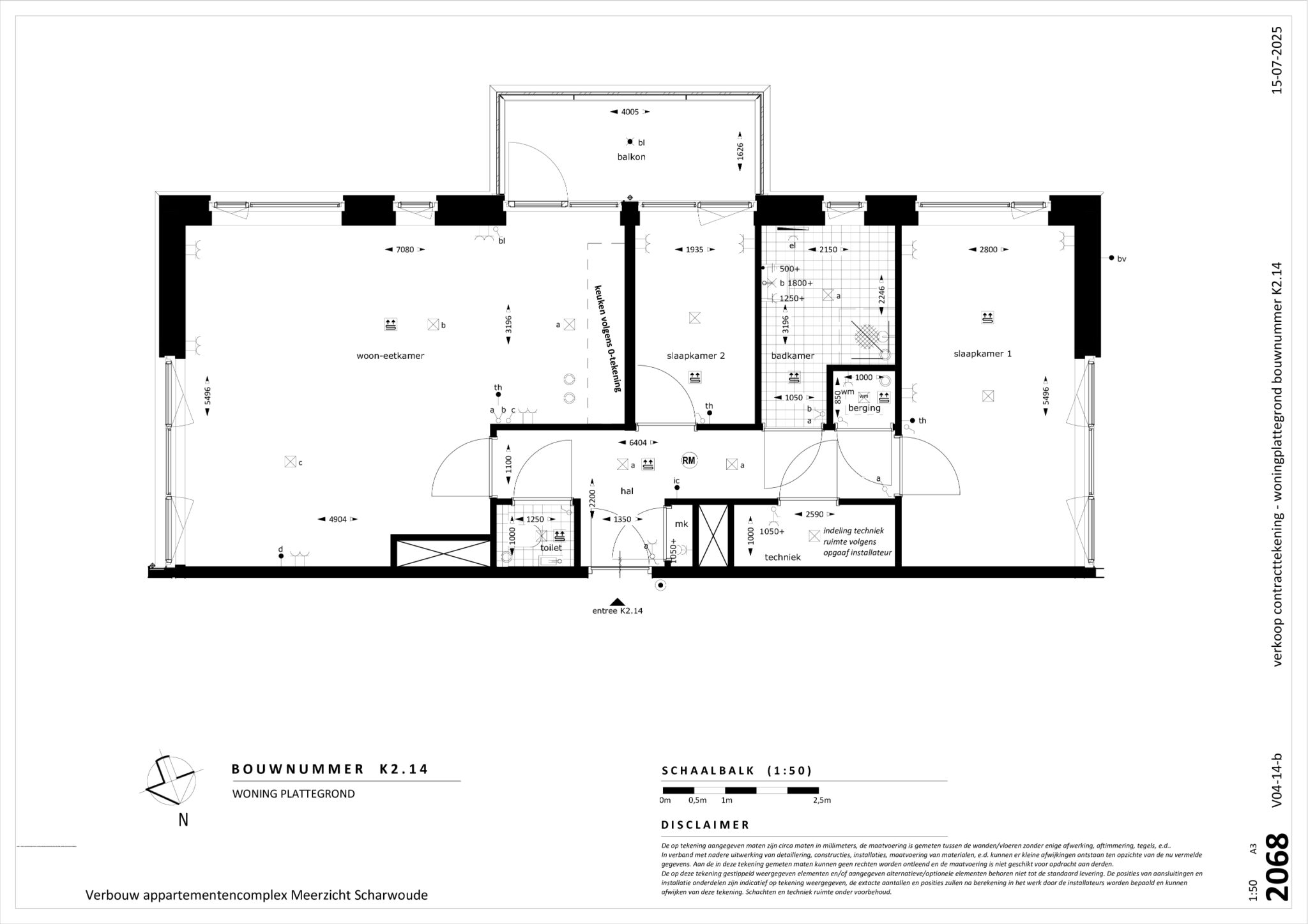
Bouwnummer K2.14

– 2e verdieping

Woningkenmerken

Bouwnummer K2.14
Status Verkocht
Prijs € €479.500,- v.o.n.,- v.o.n. Binnenkort Beschikbaar
Verdieping 2e verdieping
Gebruiksoppervlakte 77 m²
Buitenruimte 6 m²
Parkeerplaats Inbegrepen bij woning – met mogelijkheid om laadpunt aan te sluiten op eigen meterkast
INSCHRIJVEN


Klik hier om de plattegrond in een nieuw tabblad te openen, om makkelijker in te zoomen.

Technische Tekeningen

Impressie interieur

*Deze impressies zijn niet specifiek van K2.14

Verkoop in volle gang!

Heb je interesse? Schrijf in op een van de beschikbare woningen of neem direct contact op met de makelaar.

Direct inschrijven