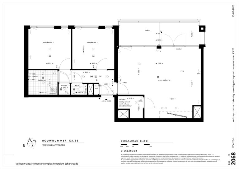
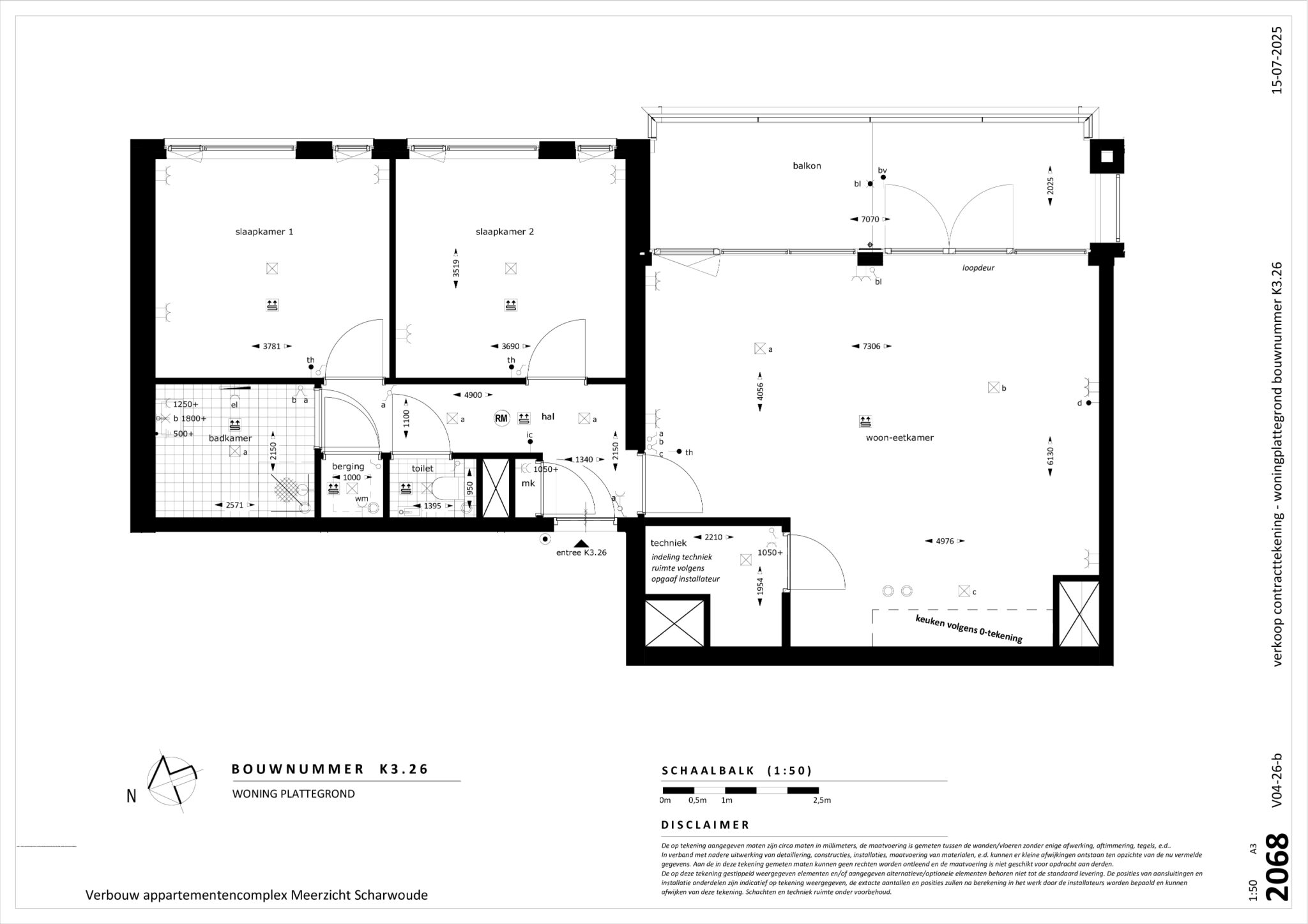
Bouwnummer K3.26

– 3e verdieping

Woningkenmerken

Bouwnummer K3.26
Status Verkocht
Prijs € €544.900,- v.o.n.,- v.o.n. Binnenkort Beschikbaar
Verdieping 3e verdieping
Gebruiksoppervlakte 86 m²
Buitenruimte 14 m²
Parkeerplaats Inbegrepen bij woning – met mogelijkheid om laadpunt aan te sluiten op eigen meterkast
INSCHRIJVEN


Klik hier om de plattegrond in een nieuw tabblad te openen, om makkelijker in te zoomen.

Technische Tekeningen

Impressie interieur

*Deze impressies zijn niet specifiek van K3.26

Verkoop in volle gang!

Heb je interesse? Schrijf in op een van de beschikbare woningen of neem direct contact op met de makelaar.

Direct inschrijven