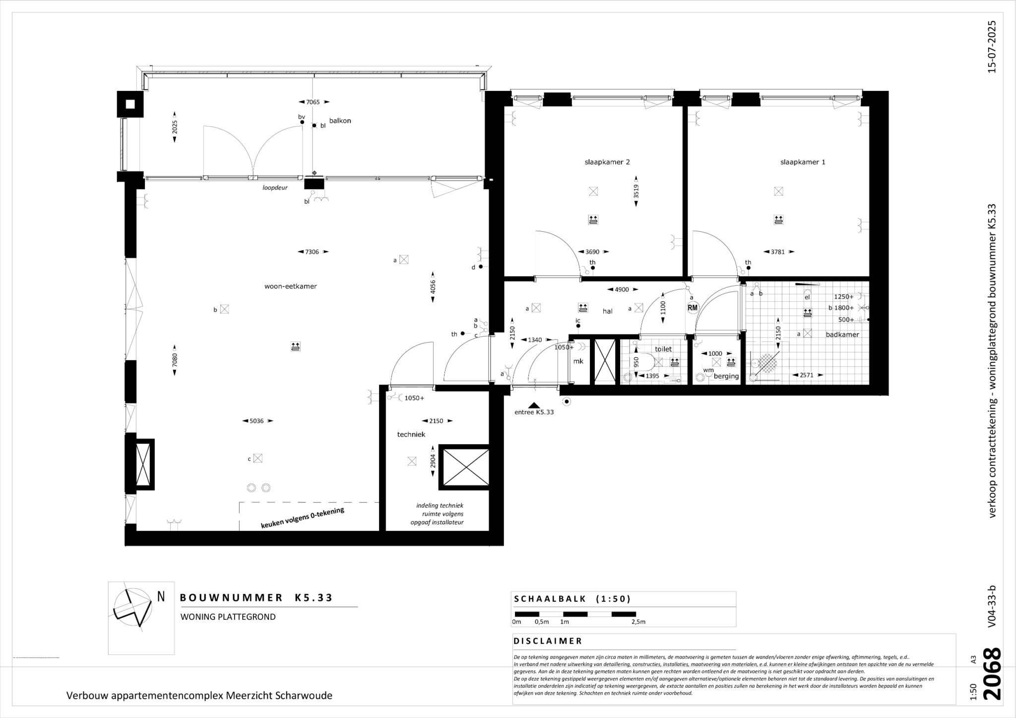
Bouwnummer K5.33

– 5e verdieping

Woningkenmerken

Bouwnummer K5.33
Status Beschikbaar
Prijs € €649.500,- v.o.n.,- v.o.n. Binnenkort Beschikbaar
Verdieping 5e verdieping
Gebruiksoppervlakte 94 m²
Buitenruimte 14 m²
Parkeerplaats Inbegrepen bij woning – met mogelijkheid om laadpunt aan te sluiten op eigen meterkast
INSCHRIJVEN

Technische Tekeningen

Impressie interieur

*Deze impressies zijn niet specifiek van K5.33

Verkoop in volle gang!

Heb je interesse? Schrijf in op een van de beschikbare woningen of neem direct contact op met de makelaar.

Direct inschrijven